eic kyf msh nnz uhz tv nt
Anzeige Refinery (c1)
Di, 08:30 Uhr
07.02.2012

nnz-doku: Einblick in das Forum (update)

Die nnz hatte heute über die weiteren Planungen zum künftigen Nordhäuser Altstadt-Forum berichtet. Wie das neue Einkaufszentrum in den einzelnen Etagen aussehen könnte, das wollen wir Ihnen nicht vorenthalten....


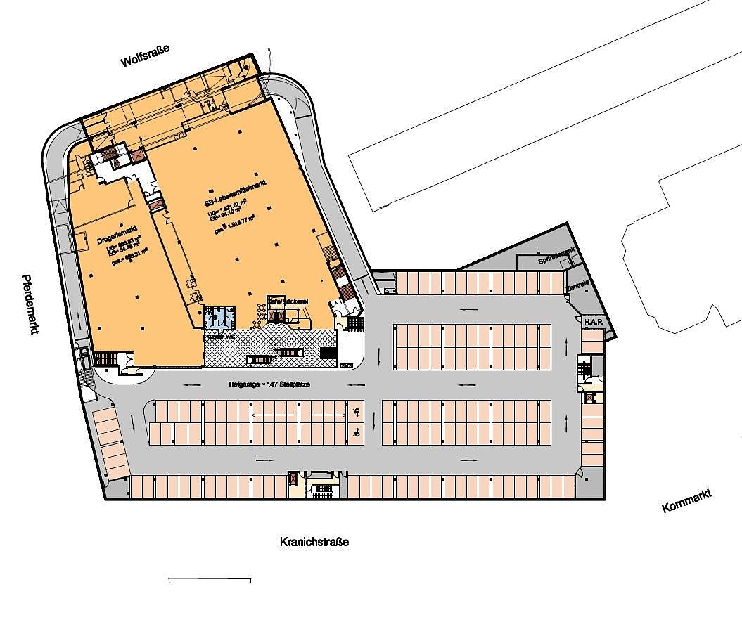
Untergeschoss (Foto: ITG) Untergeschoss (Foto: ITG)

Im Untergeschoss (Bild), dem so genannten Basement, wird ein Frischemarkt (vermutlich REWE) errichtet. Auf dem gleichen Niveau befinden sich Parkflächen. Weitere Parkflächen gibt es auf allen weiteren Geschossebenen, so dass die Kunden ohne Mühen mit oder ohne Einkaufswagen vom Auto zum Einkaufsvergnügen gelangen.

Update: Zur besseren Verdeutlichung der Grafiken stellen wir Ihnen die Grundrisse der einzelnen Geschosse zusätzlich als PDF zum Download bereit.
1. Obergeschoss (Foto: ITG)
Erdgeschoss (Foto: ITG)
2. Obergeschoss (Foto: ITG)
Autor: nnz

Downloads:

Anzeige symplr (6)
Kommentare
yven
06.02.2012, 19:13 Uhr
Neues Altstadt Forum, und nun Verkehrschaos ??
Heute habe ich nun die Pläne für unser neues ,, Forum,,studiert und bin davon überzeugt, etwas Gutes wird es werden. Aber, was wird mit der Verkehrsregelung. Ich als Nordhäuser erkenne schon heute in der Regelung am Knoten Engelsburg, Kranichstrasse, Pferdemarkt einen zeitweise zum Kollaps neigenden Stadtmittelpunkt. Bei einer Ausfahrtregelung der PKW aus dem Parkdeck des Forums über Wolfstrasse auf Pferdemarkt ist dort schon bei Straßenbahnen, welche den Kreisel am Kino befahren und Rot auslösen Ende der Ausfahrt in Richtung Stadtmitte, ein weiterer Rückstau in die Wolfstrasse ist zu erwarten.Meine Frage ; Wie ist hier der Stand der Verkehrstechniker, welche Varianten sind angedacht.
Eine sachdienliche öffentliche Antwort eines kompetenten Mitgliedes des Stadtrates wäre hier sicher gut.
Norbert
06.02.2012, 19:21 Uhr
jetzt wäre noch interessant...
... was genau für Geschäft dort wohl einziehen werden, soweit wie ich gehört habe haben Saturn und MediaMarkt schon abgesagt, Textiltechnisch hoffe ich mal auf einen H&M oder ähnliche...
Norbert
06.02.2012, 19:26 Uhr
@Alleswirdgut1
sicher ein weiterer interessanter Aspekt. Ableitung über die Wallrothstraße? Altstadt dürfte keine Alternative darstellen. Es gibt nur die beiden Möglichkeiten, entweder Kreiselkollaps oder Wallrothstraße.
NDHler
06.02.2012, 21:55 Uhr
Und von außen?
Wie sieht das denn von außen aus? Vielleicht gehe ich da nie rein aber muss da oft dran vorbei?! Ne mal im Ernst, wie soll denn der Tempel von außen aussehen. Wäre ja auch mal interessant! Und übrigens, wo sollen denn die Autos hin? Etwas anderes als über die Wolfstrasse fällt mir nicht ein!
Herr Taft
07.02.2012, 08:18 Uhr
Ein- und Ausfahrt
...wenn ich das richtig erkennen kann, soll die Einfahrt vom Pferdemarkt her erfolgen und die Ausfahrt in der Wolfstraße sein.
mutti
07.02.2012, 13:04 Uhr
wozu?
Wer bitte braucht noch ein Einkaufszentrum hier? Gibt wohl noch nicht genug davon. Bei den Kita-Beiträgen hat eh keiner mehr was zum ausgeben. Vielleicht sollte man die Gelder anderweitig ausgeben als für ein Einkaufszentrum.
Rainer Zufall
07.02.2012, 18:42 Uhr
@jetzt wäre noch interessant...
Die Geschäfte würden mich auch mal interessieren. Ein H&M wäre Klasse!! Aber es wird wohl auf jeden Fall ProMarkt, Rossmann und REWE herein kommen.
Harzer_jung
07.02.2012, 21:40 Uhr
promarkt?
ähm ich denke die gesellschaft die hinter Promarkt steht ist in Insolvenz? lasse mich da aber auch gern eines besseren belehren. Mediamarkt oder saturn, da glaub ich eh nicht daran. dafür ist zuwenig los hier. und vorallem es ist ja keiner der beiden in kurzer reichweite um sich gegenseitig "Konkurenz machen zu können"

Die beiden sind doch immer räumlich sehr dicht beieinander. (liegt wohl am Konzept sind ja eigentlich eine Firma)
Hmm ein zweiter Roßmann? eher schon wahrscheinlich. H&M? wär nicht das schlechteste.

Aber abwarten. auch wenn die Baugrube jetzt da ist, es kann immer noch ein Nordhäuser Schwanenteich werden. ich glaubs alles erst wenn wirklich beton verbaut wird.
Herr Taft
08.02.2012, 08:33 Uhr
ich vermute,
, dass es im neuen Einkaufszentrum auch nichts neues geben wird. Ein paar Geschäfte in der Stadt werden wohl umziehen, vielleicht macht einer noch eine Filiale auf. Da bleibt wohl alles beim Alten. Für die Großen sind wir zu klein und für die Kleinen ist es schwer sich an einem neuen Standort zu behaupten...
wirflöha
08.02.2012, 12:28 Uhr
Tempel-Allee oder Schulden-Meile am Kornmarkt NDH
Hallo Nußbaum, sehr gut informiert oder?
Hatte mit PSG fast gleichen Gedanken, höre nnz-TVs vom 6. Februar! Viel Einkaufsfläche neben der Straßenbahn, aber wenig Arbeitsstätten zum Geldverdienen.
Denn mit der Kraft zum Einkaufen ist das in der SOZIALEN Markt-Wirt-Schaft so eine Sache.

Muß ein bisschen ausholen, denn ich wollte eigentlich den Stadträten oder den kommenden OB, heute eine Frage stellen, die dann aber wieder nicht, nirgendwo erscheint und so ließt sie wenigsten Frau Nußbaum.

Wie viel im Jahr oder wo, außer in Nordhausen, zahlt der Investor Steuern? Das gleich gilt für die einzelnen Geschäftsinhaber der Geschäfte, einschließlich der Parkflächen? Zusatz: Was passiert, wenn der Markt, gleich nach Eröffnung pleite macht? Welcher Bank oder der Stadt gehört dieser Markt? Wird dann aus dem OB ein Marktmännchen? Siehe Bad Frankenhausen und das Berghotel oder Kurhotel!

ERSTENs, In dieser Zeitung wird alljährlich ein Bericht (Jahresbericht)) des Institut für Konsumforschung der BRD wiedergegeben, wo Nordhausen immer eine der LETZTEN Plätze belegt- wäre für das Bäumchen mal interessant! So zieht es alle GROßEN Händler H&M) förmlich in unsere Stadt.

ZWEITENs, in Erfurt gab es mal eine Studie, von Stalin-Architekten, die aus der Altstadt vor den Domstufen eine Aufmarsch-Straße zum 1. Mai und 7. Oktober machten. Alle im Wege stehenden Bauten der Altstadt wurden, zweckmäßigerweise platt gemacht. Und die Stufen als Tribüne genutzt.

Wegen einem Knöllchen am Auto in der Altstadt oder möglichen Pollern, die in der Unterhaltung ein Vermögen kosten, werden hier von FREIEN Bürgern Unterschriften gesammelt, aber jetzt können sie außer zu Weihnachten bald nur noch zu Pfingsten, Eis am Goldstiel verkaufen, es passiert nichts.

DRITTENs, setzt sich jeder Stadtarchitekt und/oder Bürgermeister ein Denkmal. Manchmal schon zu Lebzeiten. Der bis zur Wende geschaffenen Platz Kornmarkt war zu klein, um eine direkte Allee von Tempel hin zum Gotteshaus zu bilden. Das Geld, Die Musen, das Geld, die Händler, damals noch Blasi-Markt, mußten auf einer Allee verbunden werden.

Das war schon immer so, also mußten schnöde Wohngebäude, welche man der Wohnungsnot von Studenten hätte widmen können, einem Großen, einer neuen IDEE weichen.

Und jetzt noch einmal die Frage, die auch Harzer junge oder die Mutti, nur mit anderen Worten gestellt haben. Bekommt die Stadt denn irgendeinen Steuer-EURO aus diesen Märkten der Innenstadt und wie viel? Mit dem neuen Abrechnungssystem sollte das ja auch für jeden -- kompetenten Stadtrat, zu erfragen - möglich sein, laut Vorscheiber – Alles wird gut.

Oder hätte ein Auftraggeber nicht die überflüssigen Wohngebäude, die Rede war von 10 Jahren Planung, mit einbeziehen können? Mein Vorschlag für den Weg zwischen Wolfstraße (oder Wolfsrasse, siehe Plan 2 OG)) und Kornmarkt in Schuldenmeile oder Tempelweg zu nennen. Es gibt sicher noch mehr Vorschläge, Herr PSG, oder?

Alles, damit die Steuergroschen immer schön von Politikern bewegt werden!
Und Entschuldigung Frau Werner, komme total vom Sozialen-Weg ab!
Ihr Wirflöha
Sissi
08.02.2012, 14:01 Uhr
Wozu ?
Wozu brauchen wir eigendich noch ein Einkaufstempel in Nordhausen? Ich find die Galerie reicht doch für Nordhausen. Was für Geschäfte sollen da eigentlich rein? Also wenn kein Kaufland, H&M, NewYorker, Media Markt oder Saturn mitrein kommen, dann lohnt es sich wirklich nicht.
pumpnC
08.02.2012, 18:48 Uhr
Also..
beim Sortimentenkaufhaus handelt es sich sehr wahrscheinlich um Müller und der Elektromarkt wird so heißen wie ein bekannter Planet :) Mediamrkt wird´s nicht sein, die hatten ja schon damals offen bekundet, dass Nordhausen nicht attraktiv genug für den Discounter ist. Soll mir auch recht sein, solange es nicht so ne Wucherbude wie Herfag ist.

Ansonsten hoffe ich wirklich, dass es nun endlich los geht mit dem Altstadtforum, denn es würde vor allem das Oberstadtgebiet enorm aufwerten.
Herr Taft
10.02.2012, 13:12 Uhr
@wirflöha: Häh... ?
Ich musste Ihren Beitrag ein paar Mal lesen und konnte dennoch nicht so ganz den Sinn erfassen.

Gut informiert ? Ich ? Ganz sicher nicht. Ich mache mir halt nur meine Gedanken. Wie war es denn anfänglich bei der Südharzgalerie - oder schlimmer: bei der Atrium-Passage ? Ich kann mir nicht vorstellen, dass es mit dem Altstadt-Forum anders werden soll. Sissi bringt's auf den Punkt: Ohne etwas Neues verschieben sich die Kundenströme höchstens ein wenig - aber mehr wird es nicht.

Zum Thema Steuern: Gewerbesteuer bekommt die Komune, in der Gewerbebetrieb ansässig ist (bitte korrigieren, wenn ich falsch liege - bin da nicht 100%ig sicher). Das bedeutet, eröffnet ein ortsansässiger Gewerbetreibender einen Laden, profitiert die Stadt. Bekommen wir eine Filiale von reWe, Aldi, Saturn u.s.w., profitiert die Stadt nicht. Der Investor bekommt Miete. Da der Investor kein Privatmann ist, unterliegen auch die Mieteinnahmen der Gewerbesteuer (auch hier ggf. korrigieren). Hat der Investor seinen Sitz in Nordhausen, hat also auch die Stadt etwas davon...hat er ?
Kommentare sind zu diesem Artikel nicht mehr möglich.
Es gibt kein Recht auf Veröffentlichung.
Beachten Sie, dass die Redaktion unpassende, inhaltlose oder beleidigende Kommentare entfernen kann und wird.
Anzeige symplr (9)
Anzeige symplr (8)