Di, 07:37 Uhr
02.11.2010
nnz-Forum: Ansehen und urteilen
Es wurde in diesem Forum schon öfter über den Bebauungsplan gefachsimpelt, deshalb möchte ich hiermit mal allen Lesern eine Möglichkeit geben, sich eine Skizze auf Basis des Bebauungsentwurfs anzuschauen, schreibt Thorsten Hering an die Redaktion der nnz...
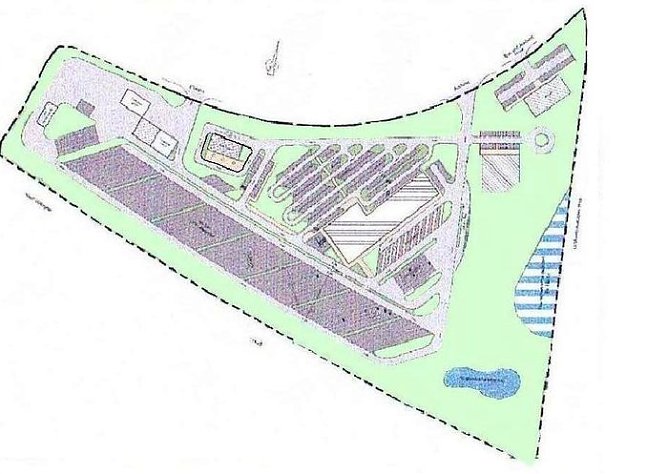
Die Parkflächen sind dunkelgrau, die Gebäude sind rot, rechts oben ein Hotel, welches laut Mitteilung aus der Stadtverwaltung an Mitglieder der BI aber schon wieder verworfen wurde, was dafür gebaut werden soll, wurde nicht verraten. Dieses Gebäude (Hotel) soll eine Bauhöhe von 12 Metern haben. Die beiden anderen Gebäude rechtsseitig, mit Erlebnis gekennzeichnet sind im Planungsentwurf mit Entertainment Center und Shop bezeichnet, haben eine Bauhöhe von acht Metern, alle anderen Gebäude eine Höhe von höchstens sechs Metern.
Aufgrund der Bauhöhen und der Lage der Gebäude ist davon auszugehen, dass sie fast keine lärmmindernde Wirkung haben, sie werden als Ausgleich zum AH auch nicht den Autobahnlärm dämmen, da die BAB 38 in diesem Bereich einen relativ hohen Verlauf hat. Im Planungsentwurf steht dazu bezüglich des AH : Die angenommenen Höhen liegen unter den festgesetzten Werten und haben somit eine geringere abschirmende Wirkung. Sundhausen liegt in der Hauptwindrichtung des Autohofes (Pfeil), im Hotelbereich bzw. Ausfahrt-bereich des AH liegt die erste Wohnbebauung nur 80 Meter entfernt.
Es mag sein, dass man den Lärm etwas eindämmen kann, dann müsste Sundhausen von dieser Seite aus quasi eingemauert werden, gänzlich vermeiden kann man ihn allerdings nicht. Es ist aber unmöglich, die Abgase und die Feinstaubbelastung einzudämmen, welche nachweislich zu einem erhöhten Krebsrisiko führen.
Um mir ein Bild machen zu können, habe ich mir vor kurzem an einem relativ windstillen Abend die Zeit genommen und habe den Autohof Sangerhausen besichtigt, die Luftbelastung hat mich an Bahnhofsaufenthalte früherer Tage erinnert, wo noch Diesellok- und Dampflokbetrieb vorherrschend waren. Der AH SGH hat dabei nur 1/4 der geplanten Lkw – Stellplätze vom AH Sundhausen. Es ist allerdings fraglich, ob diese 212 Lkw-Stellplätze + 10 Bus und 180 Pkw-Parkplätze jemals ausgelastet werden. Laut Auskunft des Bundesverkehrsministeriums vom 18.10.2010 sind an der BAB 38 im gesamten Bereich Thüringen bei nächtlicher Nutzung der Pkw- und Busstellplätze 22 Lkw – Stellplätze erforderlich, wenn nur Lkw – Stellplätze genutzt werden dürfen, sind es nur 62 Stellplätze.
Die letzte Bedarfsermittlung durch das BMVBS erfolgte 2008, aber selbst wenn man von einem Mehrbedarf ausgeht und man darauf hofft, dass der AH im Bereich Leinefelde nicht gebaut wird, kann man erkennen, dass ein Projekt dieser Größe zum Scheitern verurteilt ist und so auch erwartete Steuereinnahmen und Arbeitsplätze nicht entstehen
Vielleicht lässt sich auch so erklären, dass bei einer weiteren Firma von Klaus Hasebrink, der GROMA Beteiligungs GmbH, die Eröffnung des Insolvenzverfahrens durch das Amtsgericht Ingolstadt am 06.02.2007 mangels Masse abgelehnt worden sein soll. In der vorigen Woche wurde dies ja schon über die SG Projektentwicklung Immobilien OER berichtet.
Mir war im August schon aufgefallen, dass die Firmen von Herrn Hasebrink oft die Orte wechseln, deshalb habe ich in meiner Stellungnahme an die Stadt NDH zum AH auch darum gebeten unter anderem diese beiden Firmen zum Schutz des Ansehens der Stadt Nordhausen zu überprüfen, ich bin mir nicht sicher, ob dies getan wurde. Ein weiteres halb leerstehendes Areal im Stadtgebiet würde ein weiteres negatives Aushängeschild für Nordhausen bedeuten.
Thorsten Hering, Mitglied der Bürgerinitiative
Autor: nnzDie Parkflächen sind dunkelgrau, die Gebäude sind rot, rechts oben ein Hotel, welches laut Mitteilung aus der Stadtverwaltung an Mitglieder der BI aber schon wieder verworfen wurde, was dafür gebaut werden soll, wurde nicht verraten. Dieses Gebäude (Hotel) soll eine Bauhöhe von 12 Metern haben. Die beiden anderen Gebäude rechtsseitig, mit Erlebnis gekennzeichnet sind im Planungsentwurf mit Entertainment Center und Shop bezeichnet, haben eine Bauhöhe von acht Metern, alle anderen Gebäude eine Höhe von höchstens sechs Metern.
Aufgrund der Bauhöhen und der Lage der Gebäude ist davon auszugehen, dass sie fast keine lärmmindernde Wirkung haben, sie werden als Ausgleich zum AH auch nicht den Autobahnlärm dämmen, da die BAB 38 in diesem Bereich einen relativ hohen Verlauf hat. Im Planungsentwurf steht dazu bezüglich des AH : Die angenommenen Höhen liegen unter den festgesetzten Werten und haben somit eine geringere abschirmende Wirkung. Sundhausen liegt in der Hauptwindrichtung des Autohofes (Pfeil), im Hotelbereich bzw. Ausfahrt-bereich des AH liegt die erste Wohnbebauung nur 80 Meter entfernt.
Es mag sein, dass man den Lärm etwas eindämmen kann, dann müsste Sundhausen von dieser Seite aus quasi eingemauert werden, gänzlich vermeiden kann man ihn allerdings nicht. Es ist aber unmöglich, die Abgase und die Feinstaubbelastung einzudämmen, welche nachweislich zu einem erhöhten Krebsrisiko führen.
Um mir ein Bild machen zu können, habe ich mir vor kurzem an einem relativ windstillen Abend die Zeit genommen und habe den Autohof Sangerhausen besichtigt, die Luftbelastung hat mich an Bahnhofsaufenthalte früherer Tage erinnert, wo noch Diesellok- und Dampflokbetrieb vorherrschend waren. Der AH SGH hat dabei nur 1/4 der geplanten Lkw – Stellplätze vom AH Sundhausen. Es ist allerdings fraglich, ob diese 212 Lkw-Stellplätze + 10 Bus und 180 Pkw-Parkplätze jemals ausgelastet werden. Laut Auskunft des Bundesverkehrsministeriums vom 18.10.2010 sind an der BAB 38 im gesamten Bereich Thüringen bei nächtlicher Nutzung der Pkw- und Busstellplätze 22 Lkw – Stellplätze erforderlich, wenn nur Lkw – Stellplätze genutzt werden dürfen, sind es nur 62 Stellplätze.
Die letzte Bedarfsermittlung durch das BMVBS erfolgte 2008, aber selbst wenn man von einem Mehrbedarf ausgeht und man darauf hofft, dass der AH im Bereich Leinefelde nicht gebaut wird, kann man erkennen, dass ein Projekt dieser Größe zum Scheitern verurteilt ist und so auch erwartete Steuereinnahmen und Arbeitsplätze nicht entstehen
Vielleicht lässt sich auch so erklären, dass bei einer weiteren Firma von Klaus Hasebrink, der GROMA Beteiligungs GmbH, die Eröffnung des Insolvenzverfahrens durch das Amtsgericht Ingolstadt am 06.02.2007 mangels Masse abgelehnt worden sein soll. In der vorigen Woche wurde dies ja schon über die SG Projektentwicklung Immobilien OER berichtet.
Mir war im August schon aufgefallen, dass die Firmen von Herrn Hasebrink oft die Orte wechseln, deshalb habe ich in meiner Stellungnahme an die Stadt NDH zum AH auch darum gebeten unter anderem diese beiden Firmen zum Schutz des Ansehens der Stadt Nordhausen zu überprüfen, ich bin mir nicht sicher, ob dies getan wurde. Ein weiteres halb leerstehendes Areal im Stadtgebiet würde ein weiteres negatives Aushängeschild für Nordhausen bedeuten.
Thorsten Hering, Mitglied der Bürgerinitiative
Anmerkung der Redaktion:
Die im Forum dargestellten Äußerungen und Meinungen sind nicht unbedingt mit denen der Redaktion identisch. Für den Inhalt ist der Verfasser verantwortlich. Die Redaktion behält sich das Recht auf Kürzungen vor.
Die im Forum dargestellten Äußerungen und Meinungen sind nicht unbedingt mit denen der Redaktion identisch. Für den Inhalt ist der Verfasser verantwortlich. Die Redaktion behält sich das Recht auf Kürzungen vor.


