Pläne geändert
Montag, 18. Juni 2007, 20:28 Uhr
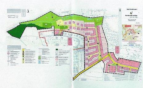
Nordhausen (nnz). Am Wiesenweg und Kirschweg in Nordhausen Nord soll ein neues Einfamilienhausgebiet entstehen. Es wird kleiner sein als ursprünglich geplant. Über die Änderungen informierte heute Abend Stadtplanerin Inge Klaan.
Das Baugebiet am Kirschweg und Wiesenweg wird kleiner ausfallen als geplant. Statt den Rüdigsdorfer Weg auszubauen, soll das Gebiet nun über eine eigene Straße beidseitig erschlossen werden. Kleingärtner, die schon auf eine verbesserte Zufahrt gehofft hatten, mußten enttäuscht werden. Die Schotterzufahrt bleibt.
Neben den Straßen im Wohngebiet, sind die von Interesse, die den Verkehr in die Stadt hineinführen. Drei Möglichkeiten dafür gibt es. Über die Gumpestraße, an der Schönen Aussicht oder an der Robert Koch Straße. Die Variante von unten durch die Gumpe hat sich mit der Verkleinerung des Gebietes erledigt. Ein Teil des Rüdigsdorfer Weges, der Richtung der Schönen Aussicht führt, kann ausgebaut und das Viertel angeschlossen werden.
Bevor die Robert Koch Straße als Zufahrt wirklich in frage kommt, muß der Kreuzungsbereich am Krankenhaus verändert werden. 10.800 Fahrzeuge nutzten 2005 diese Kreuzung. Inzwischen werden es einige mehr sein, denn das Südharzkrankenhaus hat sich erweitert. Mit einem Kreisverkehr, der rund 20.000 Fahrzeuge aufnehmen kann, sollen die Probleme gemildert werden. Der Kreisel wird mit 22 Metern Durchmesser zu den eher kleinen gehören. Ein Blumenbeet im Inneren soll es nicht geben, da die Fläche von großen LKW zur Durchfahrt benötigt wird.
Bevor das Wohngebiet erschlossen wird, möchte Baudezernentin Inge Klaan das Kreuzungsproblem gelöst haben. Sie ist zuversichtlich, da das Bauwerk in der bestehenden Straßenführung errichtet werden kann. So sei es wahrscheinlich auch während der Bauzeit möglich den Verkehr halbseitig hindurchzuleiten.
Bis Ende dieses Jahres oder Anfang des nächsten soll die Planung abgeschlossen sein. Ab 2008 könne also mit Erschließungsarbeiten gerechnet werden, ab 2009 mit der Vermarktung der rund 60 Flächen. Ab Mitte. Juli wird der Bebauungsplan im Rathaus ausliegen, wenn ihm die Stadträte am 11. Juli zustimmen. Jeder Bürger kann dazu seine Wünsche oder Bedenken äußern.
Autor: wfDas Baugebiet am Kirschweg und Wiesenweg wird kleiner ausfallen als geplant. Statt den Rüdigsdorfer Weg auszubauen, soll das Gebiet nun über eine eigene Straße beidseitig erschlossen werden. Kleingärtner, die schon auf eine verbesserte Zufahrt gehofft hatten, mußten enttäuscht werden. Die Schotterzufahrt bleibt.
Neben den Straßen im Wohngebiet, sind die von Interesse, die den Verkehr in die Stadt hineinführen. Drei Möglichkeiten dafür gibt es. Über die Gumpestraße, an der Schönen Aussicht oder an der Robert Koch Straße. Die Variante von unten durch die Gumpe hat sich mit der Verkleinerung des Gebietes erledigt. Ein Teil des Rüdigsdorfer Weges, der Richtung der Schönen Aussicht führt, kann ausgebaut und das Viertel angeschlossen werden.
Bevor die Robert Koch Straße als Zufahrt wirklich in frage kommt, muß der Kreuzungsbereich am Krankenhaus verändert werden. 10.800 Fahrzeuge nutzten 2005 diese Kreuzung. Inzwischen werden es einige mehr sein, denn das Südharzkrankenhaus hat sich erweitert. Mit einem Kreisverkehr, der rund 20.000 Fahrzeuge aufnehmen kann, sollen die Probleme gemildert werden. Der Kreisel wird mit 22 Metern Durchmesser zu den eher kleinen gehören. Ein Blumenbeet im Inneren soll es nicht geben, da die Fläche von großen LKW zur Durchfahrt benötigt wird.
Bevor das Wohngebiet erschlossen wird, möchte Baudezernentin Inge Klaan das Kreuzungsproblem gelöst haben. Sie ist zuversichtlich, da das Bauwerk in der bestehenden Straßenführung errichtet werden kann. So sei es wahrscheinlich auch während der Bauzeit möglich den Verkehr halbseitig hindurchzuleiten.
Bis Ende dieses Jahres oder Anfang des nächsten soll die Planung abgeschlossen sein. Ab 2008 könne also mit Erschließungsarbeiten gerechnet werden, ab 2009 mit der Vermarktung der rund 60 Flächen. Ab Mitte. Juli wird der Bebauungsplan im Rathaus ausliegen, wenn ihm die Stadträte am 11. Juli zustimmen. Jeder Bürger kann dazu seine Wünsche oder Bedenken äußern.

